Archidat Bouwdetails. Meer dan 6.000 referentiedetails
Javascript is uitgeschakeld
Filters
Referentieprojecten
Detailkenmerken
Circulair detailleren
Bouwfysica
Fundering
Vloer
Gevel / Scheidingswand
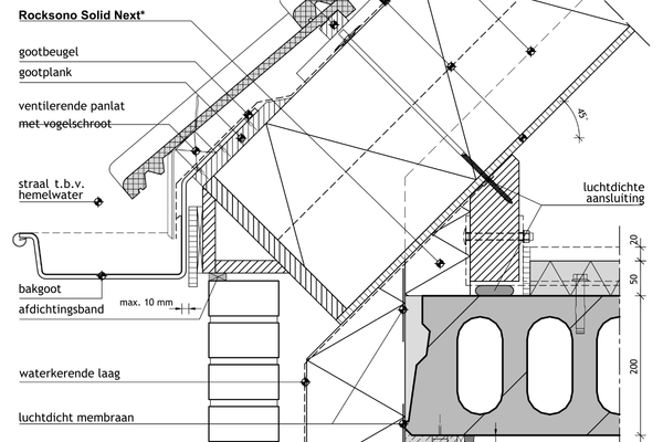
Dak
Openingen
Bouwkundige toepassingen
Zoeken op productnaam leverancier
Woningbouw
Utiliteitsbouw
Woongebouwen
Renovatie

Updates

5D-BIM Referentiemodellen: Gestapelde woningbouw

5D-BIM Referentiemodellen: Gestapelde woningbouw

In de Nederlandse woningnieuwbouw vindt een duidelijke verschuiving plaats richting gestapelde woningbouw. Als onderdeel van de 5D-BIM Referentiemodellen heeft Archidat een aantal modellen voor deze woningbouwvorm ontwikkeld. Appartementenbouw komt in Nederland in allerlei soorten en maten voor. In tegenstelling tot grondgebonden woningbouw is een woongebouw vaker maatwerk. Toch zijn er ook binnen gestapelde woningbouw herkenbare en veelvoorkomende oplossingsrichtingen.

5D-BIM Referentiemodellen: Grondgebonden woningbouw

5D-BIM Referentiemodellen: Grondgebonden woningbouw

Grondgebonden woningbouw is een van de meest voorkomende en kenmerkende woonvormen in Nederland en vormt al decennialang een belangrijk onderdeel van de bebouwde omgeving. Binnen de grondgebonden woningbouw zijn vier kenmerkende typologieën te onderscheiden: de tussenwoning, hoekwoning, twee-onder-één-kapwoning en vrijstaande woning.

Wat zijn de Archidat 5D-BIM referentiemodellen?

Wat zijn de Archidat 5D-BIM referentiemodellen?

Archidat heeft de afgelopen jaren een set referentiemodellen ontwikkeld: de Archidat 5D-BIM Referentiemodellen. Deze modellen vormen een belangrijke basis voor het inzichtelijk maken van bouwkosten en bouwtechniek binnen de woningbouw en bieden verdiepend inzicht in de opbouw en kosten van veelvoorkomende woningtypologieën.

Sluit deze advertentie