{1}
##LOC[OK]##
{1}
##LOC[OK]##
##LOC[Cancel]##
{1}
##LOC[OK]##
##LOC[Cancel]##
Om deze website goed te laten functioneren, gebruiken wij cookies. Bekijk ons
cookiebeleid
. Als u onze site gebruikt, gaan wij ervan uit dat u akkoord bent.
Deze melding niet meer tonen
contact
|
nieuwsbrief
|
adverteren
|
inloggen
Volg ons op
Home
Bouwdetails
Bouwkosten
5D-BIM
Partners
Webwinkel
Nieuws
Bouwdetails Premium
Over Bouwdetails
Filters
Leverancier (ROCKWOOL)
Referentieprojecten
Referentieproject - Corridor woongebouw
Stapelbouw
Referentieproject - Galerij woongebouw
Stapelbouw
Referentieproject - Tussenwoning
Stapelbouw
Prefab betonbouw
Prefab betonbouw - losmaakbaar
Houtskeletbouw
Referentieproject - Hoekwoning
Stapelbouw
Prefab betonbouw
Prefab betonbouw - losmaakbaar
Houtskeletbouw
Referentieproject - Twee-onder-één-kapwoning
Stapelbouw
Prefab betonbouw
Prefab betonbouw - losmaakbaar
Houtskeletbouw
Referentieproject - Vrijstaande woning
Stapelbouw
Prefab betonbouw
Prefab betonbouw - losmaakbaar
Houtskeletbouw
Snelle selectie
Detailkenmerken
Soort detail
Leverancierdetails
Merkneutrale details
Bouwmethodiek
Stapelbouw
Gietbouw
Prefab betonbouw
Staalbouw
Houtskeletbouw
Losmaakbaar bouwen
< Meer opties laden ... >
Leverancier
Alert Isolatie
BEWI IsoBouw
Bia Beton
Bloem Sealants
BUVA
Carlisle Construction Materials
Duco Ventilation Sun Control
Faay Vianen
Fakro
Fermacell
Gebr. Bodegraven
Hakron
Halfen
De Hoop Pekso
Holonite
Isoniq
Kawneer
Kingspan Insulation
Kingspan Unidek
Mavotrans
Naxis Energy
Nelskamp
Renson
Reynaers Aluminium
ROCKWOOL
Roval Aluminium
SAPA
Soprema
Sterk Beton
Storax
Techcomlight
Terwa
Therminon
Tonzon
Unilin Insulation
Van de Vin ramen en kozijnen
VBI
VELUX Commercial
Ventistone
VIP ISOLUTIONS
Wédéflex
Xella Nederland
Alert Isolatie
Airtight Dakvoet
Firetight WSW
Airtight Air stop
Firetight WSW Reno
Airtight Airtape
Firetight Fire stop
Firetight Fuse
Alert PIR + Finish combinatieplaat
Bloem Sealants
Cavity Barriers
Luchtdicht bouwen
Vochtwering
Carlisle Construction Materials
HERTALAN®
HARDCAST®
ALUTRIX®
Duco Ventilation Sun Control
Zelfregelende ventilatieroosters
Geluiddempende ventilatieroosters
Elektr. gestuurde ventilatieroosters
Brandwerende ventilatieroosters
Roosters voor hoogbouw
Lamellenroosters
Ventilatie door de muur
Ventilatie door dak
Roosters met screen
Screens zonder ventilatie
Faay
Seperatiewand
Woningscheidende wand
Na-isolatie element
Plafondsysteem zonder isolatie
Dakelement
Hakron
Luchtdicht bouwen
Wapeningssystemen
Technische verankering
Instortvoorzieningen
Bevestigingsmaterialen
Constructieve ondersteuning
Deuvels
Hijsvoorzieningen
Stortonderbrekingen
Holonite
Premax laagreliëfdorpels
Premax zijlichtdorpels
Hybride raamonderdorpels
Kumax laagreliëfdorpels
Raamdorpels
Renovatiedorpels
Geïsoleerde gevelplinten
Spekbanden
Muurafdekkers
Kader
Isoniq
Muurvoet
Dakstand
Dakstand-XL
Kawneer
RT 72 Reflex naar buiten draaiende deur
RT 72 Reflex naar binnen draaiende deur
RT 72 Reflex draaikiepraam
RT 72 Reflex draaikiepraam/-deur
RT 72 Reflex geïntegreerde doorvalbeveiliging (Frans Balkon)
RT 72 Reflex GT 70 S draaikiepraam
GT70 S Steellook naar buiten draaiende deur
GT70 S Steellook naar binnen draaiende deur
AA 4110 schuifsystemen
AA 100 vliesgevelsystemen
AA 100 Fixscreen® Minimal doekzonwering
AA 5110 schuifsystemen
Kingspan Insulation
Kooltherm® K8 - Spouwplaat
Kooltherm® K12 - HSB Plaat
Kooltherm® K15 - Vliesgevelplaten
Kooltherm® K17 - Binnenisolatie Element
Thermaâ„¢ TP10 Renova - Hellend Dakplaat
Thermaâ„¢ TR26 - Platdak Plaat
Thermaâ„¢ TT46 - Afschot Dakplaat
OPTIM-R®
Renson
Gevelbekleding
Ventilatierooster
Zonwering
Reynaers Aluminium
ConceptSystem 77 raamsysteem
ConceptSystem 77 deursysteem
MasterPatio
MasterLine 8 raamsysteem
MasterLine 8 balkondeursysteem
MasterLine 8 taatsdeursysteem
ConceptPatio 130
ConceptPatio 155
ConceptRoof 120
ConceptWall 50
SlimLine 38 Ferro
SlimLine 38 Classic
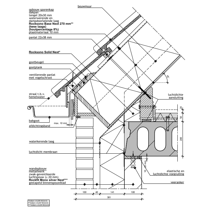
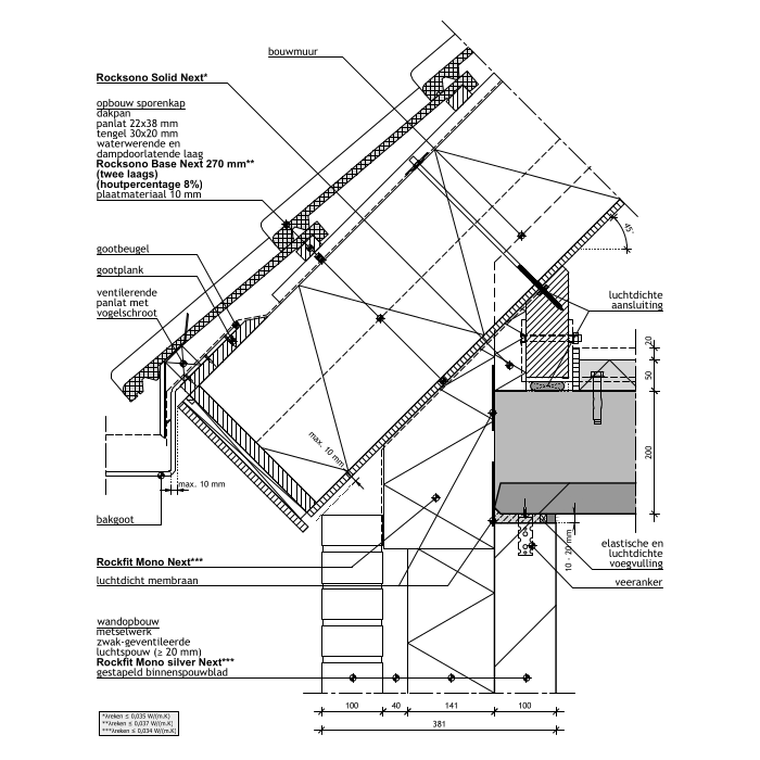
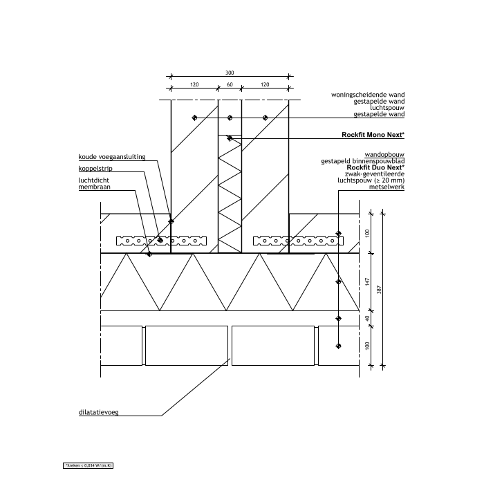
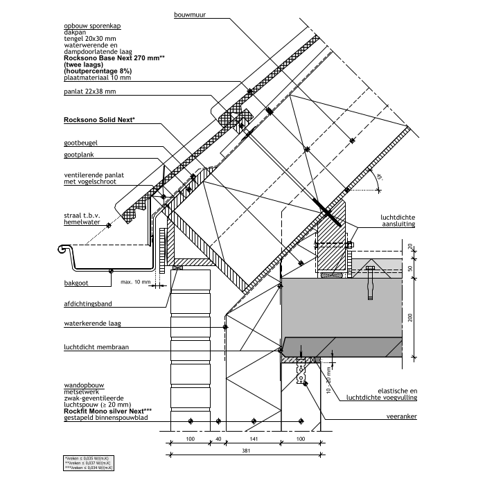
ROCKWOOL
Rockfit Duo Next
Rocksono Solid Next
Rocksono Base Next
Rockfit Mono Next
Rockfit Mono Silver Next
Rockvent Dual Next
Rockpanel gevelbekleding
Roval Aluminium
Waterslagen
Dakranden
Muurafdeksystemen
Balustersystemen
PV-paneel
Maatwerk
SAPA
Avantis Smartline 70 - Raam- & deursysteem
Avantis Smartline 70 Ligna - Raam- & deursysteem
Confort Smartline - Schuifraam
SOLEAL 75 - Raam- & deursysteem
TENTAL 50 - Vliesgevelsysteem
Schöck Nederland
Schöck Isokorf®
Schöck Thermoanker
Schöck Isolink®
Storax
Dove gevel / nightcooling
Ventilatierooster
Techcomlight
Powerdaylight
Lucernario
Powerdaylight Cradle ECO
Terwa
Bevestigingssystemen
Hijssystemen
Wapeningssystemen
Prefab beton systemen
Van de Vin
vinGarant®
vinSlide®
vinEasyfit®
vinGarant® 2.0
Ventistone
NL-profiel
B-profiel
RD-profiel
ND-profiel
VP-profiel
F-profiel
Bibliotheek
Woningbouw
Woongebouwen
Utiliteitsbouw
Renovatie
Periode
Vooroorlogs
Vroeg-naoorlogs
Woningnood
Energiecrisis
Voor / na renovatie
Voor renovatie
Na renovatie
Brandwerendheid
Spouwonderbreking
Circulair detailleren
Biobased
Biobased bouwdetails
Losmaakbaar bouwen
Losmaakbaar bouwen details
Bouwfysica
Rc vloer (m2·K/W)
≥3,7 - Minimaal Bouwbesluit
≥4
≥5,1
≥5,3
≥5,5
≥6
≥6,3
≥6,5
< Meer opties laden ... >
Rc wand (m2·K/W)
≥1
≥3,5
≥4
≥4,4
≥4,7 - Minimaal Bouwbesluit
≥4,8
≥5,2
≥5,3
≥5,5
≥6
≥8
< Meer opties laden ... >
Rc dak (m2·K/W)
≥3,5
≥4
≥5,3
≥6,3 - Minimaal Bouwbesluit
≥7
≥8
≥10
< Meer opties laden ... >
U-waarde (W/m2·K)
≤0,5
≤0,7
≤0,77
≤0,78
≤0,8
≤0,91
≤0,98
≤1,07
≤1,0
≤1,1
≤1,2
≤1,3
≤1,35
≤1,4
≤1,5
≤1,6
≤1,65
≤1,8
≤1,9
≤2,0
≤2,1
≤2,2
≤2,5
≤2,8
≤2,9
≤3,0
≤3,4
varieert
< Meer opties laden ... >
Luchtdichtbouwen: qv10-waarde (dm3/s per m2)
≤0,15 - Optimaal
≤0,4 - BENG advies
≤0,625 - Minimaal
PSI waarde / Productblad
Ja
Fundering
Fundering
Fundering op staal
Funderingsstrook
Fundering op palen
Poer
Funderingsbalk
Gemetselde fundering
< Meer opties laden ... >
HR Isolatie (fundering)
EPS
XPS
Minerale wol (fundering)
Steenwol
Glaswol
Overige isolatie (fundering)
Cellulair glas
Vloer
Vloer
Begane grondvloer
Verdiepingsvloer
Type vloer (incl. keldervloer)
Ribcassettevloer
Kanaalplaatvloer
Combinatievloer
PS-combinatievloer
Breedplaatvloer
I.h.w. gestorte vloer
Houten vloer
Holle baksteen vloer
Bollenplaatvloer
Leidingvloer
Segmentvloer
Renovatievloer
Cellenbetonvloer
Gemetselde keldervloer
Prefab vloerelement
< Meer opties laden ... >
HR Isolatie (vloer)
PIR
Resol
EPS
XPS
Hybride Isolatieschuim
PUR
Vacuüm
< Meer opties laden ... >
Minerale wol (vloer)
Steenwol
Glaswol
Overige isolatie (vloer)
Vlaswol
Folie
Cellulair glas
Cellulose
Gevel / Scheidingswand
Gevel
Spouwmuur
Vliesgevel
Gevelisolatiesysteem
Intelligente gevel
Steens metselwerk
Groengevel
Sandwichelement
< Meer opties laden ... >
Buitenblad/Buitenwandafwerking
Metselwerk
Stucwerk
Gevelbekleding
Betonsteen
Steenstrip
Droogstapelsysteem
Natuursteen
Sierbeton toplaag
Profielglas
< Meer opties laden ... >
Binnenblad/Scheidingswand
Kalkzandsteen
HSB (Houtskeletbouw)
Prefab beton
CLT
I.h.w. gestort
Cellenbeton
Keramisch metselblok
Betonsteen
Metselwerk
Gips
Metal stud
Vezelplaat
< Meer opties laden ... >
Dragend / niet dragend
Dragend
Niet dragend
Scheidingswand
Massieve scheidingswand
Lichte scheidingswand
Eind- en/of langsgevel
Langsgevel
Eindgevel
HR isolatie (gevel/scheidingswand)
PIR
Resol
EPS
XPS
Hybride Isolatieschuim
PUR
Vacuüm
< Meer opties laden ... >
Minerale wol (gevel/scheidingswand)
Steenwol
Glaswol
Overige isolatie (gevel/scheidingswand)
Vlaswol
Folie
Cellulair glas
Hennepvezels
Cellulose
Houtvezelisolatie
< Meer opties laden ... >
Dak
Dak
Hellend dak
Plat dak
Lessenaarsdak (hellend)
Glazen dak
Parkeerdak
Getoogd dak
Mansardedak (hellend)
< Meer opties laden ... >
Type hellend dak
Sporenkap
Gordingkap
Scharnierkap
Sandwich panelen
Staalplaat
Type plat dak
Kanaalplaat
Breedplaat
Houten dakconstructie
Staalplaat
Cellenbeton
Betonnen dakplaat
I.h.w. gestorte dakplaat
Combinatievloer
Holle baksteen dakplaat
Bollenplaat
CLT-vloer
Bijzondere knooppunten
Dakrand
Nok
Kilkeper
Hoekkeper
Type dakgoot
Bakgoot
Mastgoot
Kilgoot
Verholen goot
Omtimmerde goot
Ander soort goot
< Meer opties laden ... >
Dakafwerking
Dakpannen
Dakbanen
Groendak
Dakrandafwerking
Metalen dakplaat
Leien
< Meer opties laden ... >
HR isolatie (dak)
PIR
Resol
EPS
XPS
Hybride Isolatieschuim
Vacuüm
< Meer opties laden ... >
Minerale wol (dak)
Steenwol
Glaswol
Overige isolatie (dak)
Vlaswol
Folie
Cellulair glas
Hennepvezels
Cellulose
Openingen
Soort opening
Raam
Binnendeur
Buitendeur
Dakkapel
Schuifpui
Ventilatieluik
< Meer opties laden ... >
Aansluiting (raam en/of deur)
Zijaansluiting
Bovenaansluiting
Onderaansluiting
Type kozijn
Kunststof
Hout
Aluminium
Staal
Overige openingen
Daglichtbuis
Bloemkozijn
Lichtstraat
Serre
Dakraam
Lichtkoepel
Intelligent raam
Dakluik
< Meer opties laden ... >
Bouwkundige toepassingen
Balkon; trappen; balustrades
Balustrade
Trap
Balkon
Dakterras
Galerij
Geluidsisolatie
Ja
Installaties
Vloerverwarming
Zonwering
PV-paneel
Zonnecollector
Lift
Ventilatierooster
Dakdoorvoer
Rolluik
Infraroodverwarming
Zomernachtventilatie
< Meer opties laden ... >
Toegepaste onderdelen
Vlieringtrap
Kelder
Overstek
Aanbouw
Opbouw
Latei
Dorpel
Waterslag
Hemelwaterafvoer (HWA)
< Meer opties laden ... >
Binnenafwerking
Plafond
Voorzetwand
Montagetechniek
Spouwverankering
Kozijnverankering
Verankering met koudebrugonderbreking
Gevelverankering
Elementenverankering
Zoeken op productnaam leverancier
vorige
1
2
3
volgende
Bezig met vernieuwen . . .
Sluit deze advertentie